Casa semindipendente in vendita

Alba, Via Padre Girotti
€ 210.000
4 locali 4 locali
113 Mq 113 Mq
1 bagno 1 bagno

Casa semindipendente in vendita

Alba, Via Padre Girotti

Descrizione annuncio

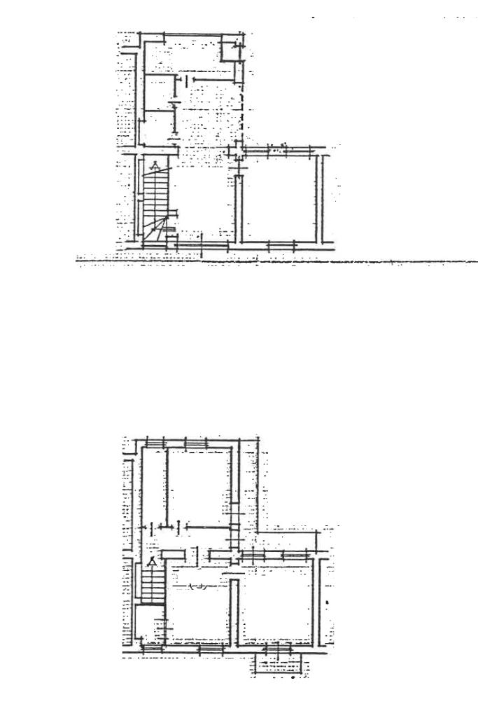
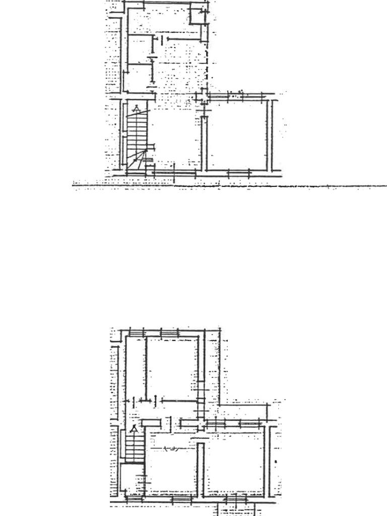
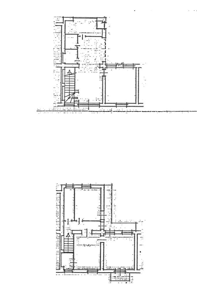
ALBA - A pochi passi da Corso Piave, in una zona comoda a tutti i principali servizi, casa semi-indipendente disposta su due livelli, perfetta per chi cerca tranquillità, indipendenza e un ampio spazio esterno. Al piano terra si trovano un garage, una cantina e una camera attualmente utilizzata come deposito. Una scala interna collega il piano terra all’appartamento situato al primo piano, composto da un disimpegno d’ingresso, cucina e soggiorno in ambienti separati, una camera da letto matrimoniale, un bagno finestrato e un pratico ripostiglio. Sono presenti anche due balconi e un generoso giardino privato all'incirca di 300 mq. Attualmente gli spazi sono suddivisi in modo funzionale, ma in fase di eventuale ristrutturazione possono essere riorganizzati per valorizzarli ulteriormente e adattarli a nuove esigenze abitative. L'immobile è dotato di riscaldamento autonomo e non presenta spese condominiali. La zona è particolarmente strategica grazie alla vicinanza a negozi, scuole, mezzi pubblici e tutti i principali servizi.

Mostra tutto

Nelle vicinanze

Trasporto pubblico Trasporto pubblico
Alba
Alba
700 m
Mussotto
Mussotto
2,3 Km
Alba (C.so Europa/v. San Pio V)
Alba (C.so Europa/v. San Pio V)
120 m
Alba (C.so Europa/v. Aldo Moro)
Alba (C.so Europa/v. Aldo Moro)
190 m
Ricariche auto elettriche Ricariche auto elettriche
SEMM Alba Beausoleil
630 m
Rivetto Suites
1,0 Km
Distributore Egea
1,3 Km
Scuole Scuole
Scuole
310 m
Scuola Elementare Umberto Sacco
1,1 Km
Scuola Michele Coppino
1,1 Km
Istituto Govone
1,2 Km
Scuola Statale d'Infanzia Via Balbo
1,4 Km
Farmacia Farmacia
Farmacia Divin Maestro
170 m
Farmacia
240 m
Farmacia Degiacomi
960 m
Antica Farmacia
1,2 Km
Farmacia Duomo
1,2 Km
Ospedali Ospedali
Ospedale San Lazzaro
860 m
Supermercati Supermercati
Prestofresco
90 m
iN'S mercato
420 m
Carrefour Market
480 m
Toysland
540 m
PrestoFresco
960 m
Negozi Negozi
Terranova
880 m
Negozi
940 m
United Colors of Benetton
950 m
Il Forno di Borio Marco
1,2 Km
Il Forno
1,2 Km
Bar Bar
Rojto caffè
700 m
100 Vini caffé la brasilera
860 m
Bar Roma
870 m
Roberto Sarotto
880 m
Caffetteria Maestra
930 m
Ristoranti Ristoranti
Osteria Gusto
760 m
Osteria moderna
800 m
Gusto madre
810 m
Ristorante Savona
810 m
Enoclub
810 m
Mostra tutto

Caratteristiche

Rif.:
61089448
Piano:
Su più livelli di 1
Totale piani:
1
Box:
1
Balconi:
2
Camere da letto:
2
Mostra tutto
Prezzo Prezzo
€ 210.000
Rata mutuo Rata mutuo
€ 997 / mese
Proponi il tuo prezzoProponi il tuo prezzo

Classe Energetica

G
G
G
G
G
G
G
G
G
EP globale non rinnovabile:
332.87 kW h/m² anno
EP globale rinnovabile:
2.37 kW h/m² anno
EP invernale del fabbricato:
EP estiva del fabbricato:
Riscaldamento:
Autonomo
Tipo impianto:
A radiatori
Tipo alimentazione:
Gasolio

Ti interessa visionare l'immobile?

Fissa un appuntamento  Fissa un appuntamento

Richiedi informazioni

Clicca su Leggi per aprire l'informativa
* Questi campi sono obbligatori

Calcola il tuo mutuo

Semplice e senza impegno
Anticipo

( % )
Mutuo

( % )

pochi semplici passi

inserisci i tuoi dati
Questionario completato
Grazie per aver richiesto un appuntamento senza impegno con un nostro Consulente del Credito e Assicurativo.

Hai inserito correttamente tutti i dati necessari e a breve riceverai una e-mail con un link da convalidare per inviare i tuoi dati.
Affiliato
Studio Langhe Snc
Via Pierino Belli, 19 12051 Alba (CN)

Il nostro staff


  • Paola Bongiovanni
    Affiliata

  • Elena Giachino
    Coordinatrice

  • Cinzia Tromboni
    Collaboratrice

  • Enrico Garino
    Affiliato
Via Pierino Belli, 19 12051 Alba (CN)
Zona: Alba Centro-Corso Piave-Corso Europa-San Cassiano
Mostra su mappa
Orari: da lunedì a venerdì 9.00 - 12.30 /15.00 - 19.30 sabato chiusura ore 12.30
Affiliato
Studio Langhe Snc
Via Pierino Belli, 19 12051 Alba (CN)

2026 Tecnocasa Franchising S.p.A. - P. IVA 08365160152 - Via Monte Bianco 60/A 20089 Rozzano (MI). Ogni agenzia ha un proprio titolare ed è autonoma. Privacy policy | Policy utilizzo | Cookie policy